Twee-onder-een-kapwoning
Woningtype RB2.08
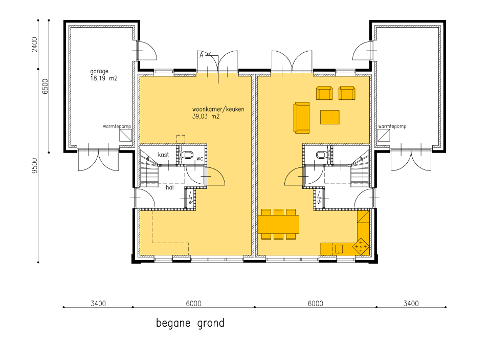
Deze twee-onder-een-kapwoning is van buiten rijk gedetailleerd en van binnen ruim opgezet. De woonkamer bevindt zich aan de achterzijde en beschikt over openslaande deuren naar de tuin. De keuken zit aan de voorzijde en is uit te breiden met een erker.
Op de bovenverdieping kies je de indeling die bij jou past: je kunt er een badkamer en twee of drie slaapkamers realiseren, eventueel met een inloopkast. De zolder leent zich perfect voor het opbergen van spullen.
Al vanaf: €
Leefruimte
Inhoud
406 m3 (inclusief berging/garage)
Gebruiksoppervlakte
118 m2
Stijl
Klassiek
Standaard in onze woningen
HR++ Beglazing
Zonnepanelen
Warmtepomp
Materiaal
Luxe gevelbakstenen
Luiken
Hardstenen raamdorpels
Keramische dakpannen
Hardhouten kozijnen
Afwerking van zink
Opties
Kunststof kozijnen
Erker
Uitbouw
Bad in de badkamer
Extra dakramen of dakkapel
Carport of luifel
Vraag een digitale brochure aan!
Wil je meer weten over onze basismodellen of over de mogelijkheden? Vraag dan een digitale brochure aan!




